Most Architecture

Thornton Residence

A curved shape made of wood elements to make an organic facade for the new garage for a family residence in London, UK

  • Type Living
  • Location London
  • Status Concept
  • Year 2020
Thornton Residence
Garage proposal

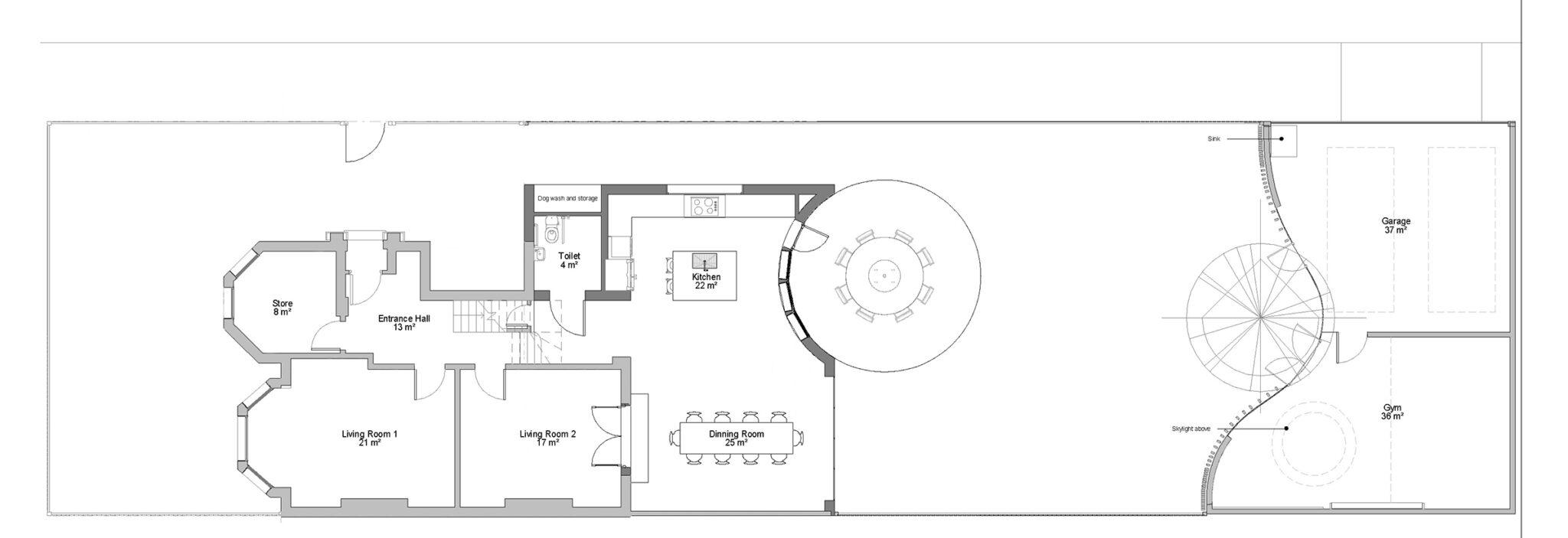
The traditional British town or suburban house is being re-imagined through creative interpretations of extension and refurbishment. For private clients, this offers the opportunity to personalise and adapt a home to their living patterns. This house extension project for a 1930’s semi-detached family home in South London utilises a curved glulam timber roof structure to create dynamic interior spaces for living. A new end of garden garage with access from the adjacent mews has a green planted roof and timber facade that accentuates the upright rhythm of the boundary fencing.

Thornton Residence
New kitchen design
Thornton Residence
New dining room
Thornton Residence
New rear extension elevation

Elevation concept

The design of the house is also intended to be an extension of the architectural language of the old residence. With a particular Victorian style and a needle dome, we wanted to add another point of tension over the kitchen with a reinterpretation of the existing dome and that in turn build a large and bright space inside thanks to the skylight located at the top of the dome.

The other new element of the extension, the volume that contemplates the dining room, contributes its prominence both inside and outside since we designed a vault with a skylight as well. The interior covered with wood adds warmth to this space with monumental characteristics, making this new dining room an unforgettable space for the dinners that our clients have here.

Thornton Residence
New rear extension 3D image
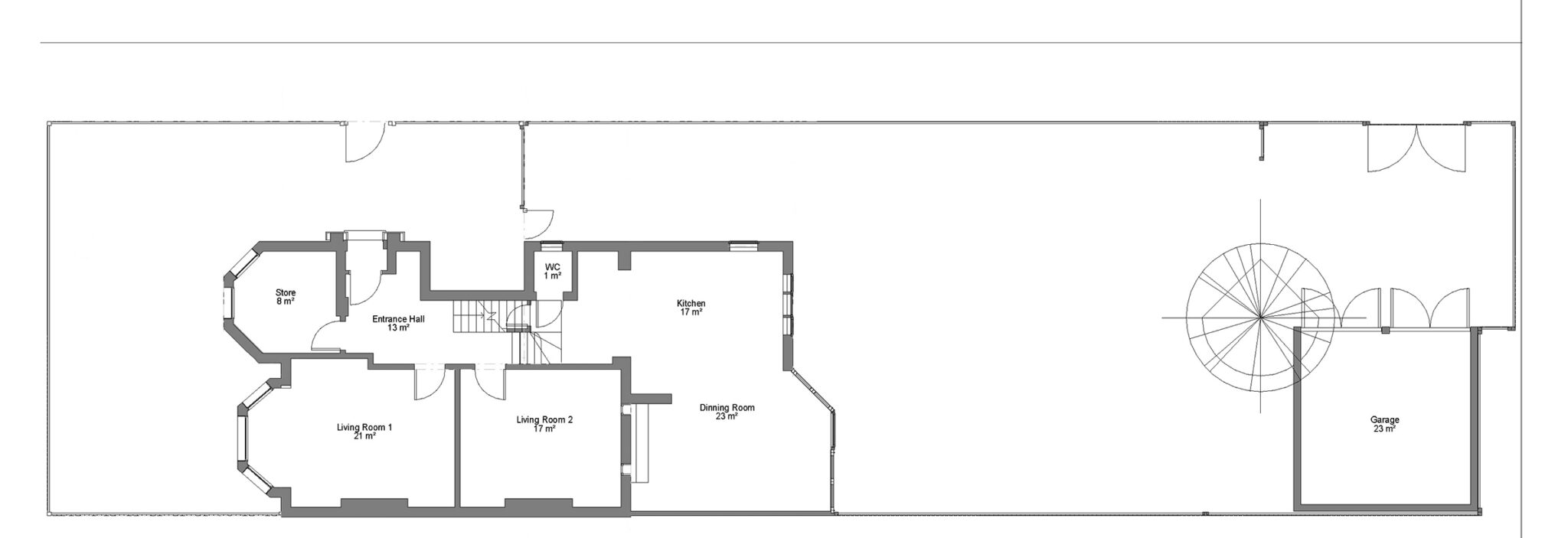
Thornton Residence
Existing House Plan
Thornton Residence
New House Plan
Thornton Residence
Garage view from above

Loading